Millwood Close
Millwood Close was produced in studio class during the final semester of the program. The brief dictated the comprehensive implementation of sustainable design, materials and techniques in the creation of four 2 storey Live/Work/Grow/Age-in-Place units, with retail space on the ground floor and residences above. The heritage house occupying the site would be renovated or restored, and could be relocated on the property. Our team drew inspiration from the archetypical small town “Main Street”, bisecting the site with a central avenue lined with a pair of new buildings. The heritage house sits in the heart of the estate at the end of the avenue, bridging tradition and technology by uniting the utilitarian architecture of days-gone-by with the smart contemporary design of today and integrating itself into the forward-thinking vision of the community.
Ground Floor Plan (Presentation)
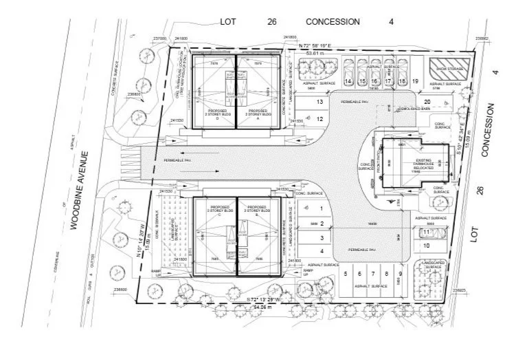
Site Plan
Ground Floor Plan (Working)
Bubble Diagram - Ground Floor Mercantile
Low Angle "Main Street" View
Heritage House from the Southeast
Second Floor Plan - Presentation
Massing Sketch
Wall Section
Second Floor Plan - Working
North Elevation - Presentation
North Elevation - Presentation
Firewall Section & Detail
Environmental Section
Concrete & Curtain Wall Connection Detail
Unit C from the Southwest
Heritage House - North Elevation
Heritage House - West Elevation
Basement Floor Plan - Presentation
Longitudinal Section
Roof Plan - Presentation
Heritage House from the Northeast
New & Existing Wall Detail
Heritage House - South Elevation
Kitchen - Second Floor (Residential)
Units B/C from the Northwest
Store - Ground Floor (Mercantile)
Heritage House - South Elevation (Presentation)